This one bedroom, two-bath penthouse duplex in Lenox Hill on the Upper East Side is pretty deluxe, and well-priced at $750,000. But brace yourself for the maintenance: it's $3,787—but according to the listing, 70 percent is tax deductible.
On the ninth and 10th floors of a 1916 Beaux Art building, 61 East 77th St., PH 9/10D has new windows and updated fixtures, northern exposure, dark hardwood floors, and in some spaces 18-foot high ceilings.
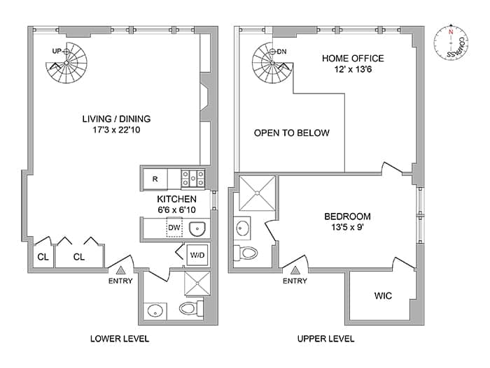
The first floor living area has space for a dining area, and has a decorative marble fireplace. (How there is a fire ablaze in the photo below is unclear.)


A spiral staircase connects the two levels; it's important to be realistic about how much you'll enjoying scaling it on a regular basis.
Loading ad...


The windowed kitchen features glass-front cabinets, stainless steel appliances, a vented gas range, French door refrigerator, and dishwasher.


Loading ad...
There's also a guest bathroom on this level.


At the top of the staircase is a mezzanine, which looks like it is used as a home office.
The bedroom gets eastern light, and has a walk-in closet.


Loading ad...
The en suite bathroom features a walk-in rain shower and open shelving.


The brick and limestone co-op has a part-time doorman and live-in super, and has liberal policies on pieds-à-terre, subletting, parental purchase and co-purchasing.


Loading ad...
Located in an historic district, the building is a block from Central Park and Museum Mile, as well as Lenox Hill hospital. The 4 and 6 trains are close by at 77th Street, and there stores and restaurants are plentiful in the area.
